Manage Viewports
Manage Viewports functionality allows to make modifications to existing Sheets.
Replace Viewports
Replace Viewports using selected Viewports - views that are already placed on Sheets can be replaced by other views.
The workflow is this:
Select existing views from the table that you want to replace and hit Replace Viewports using selected Viewports.

Then, select new views to replace the existing view.
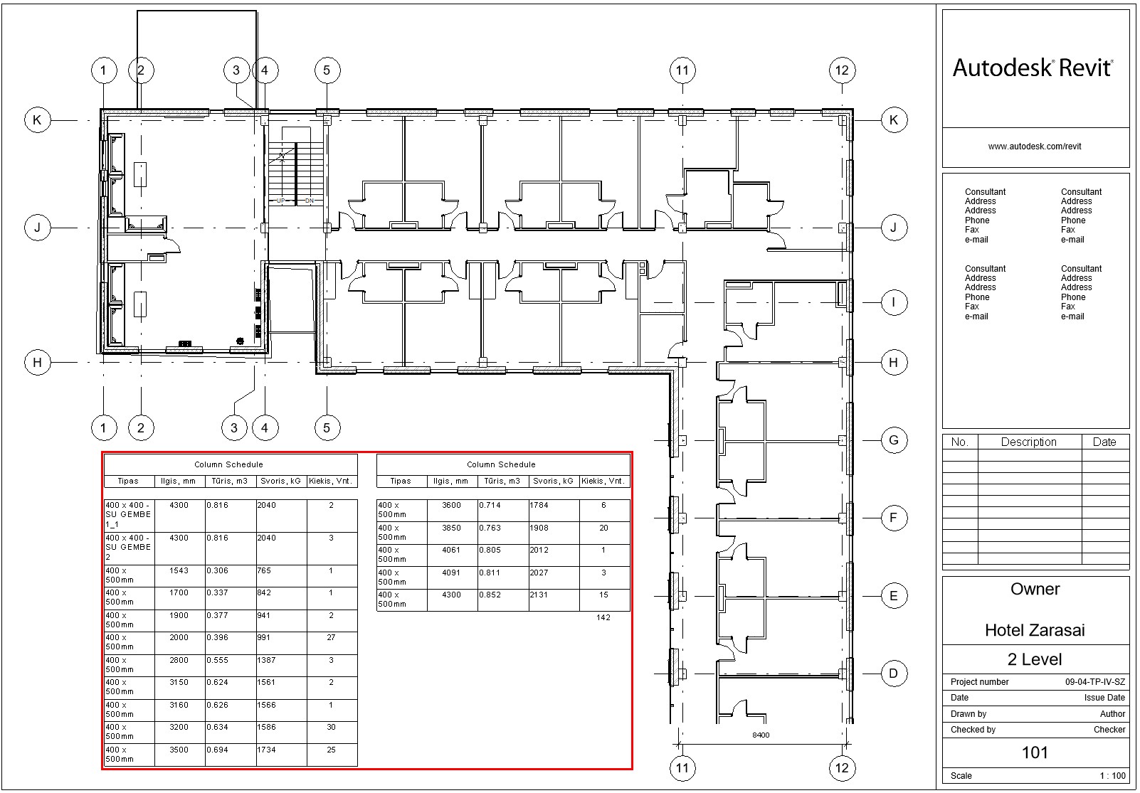
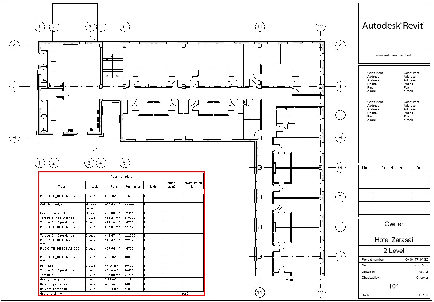
In this example, the 'Floor Schedule' will be replaced with the 'Column Schedule'.

In the next window, choose the properties to copy from the replaced views.

In the 'Multiple View Mapping' window, assign replacement views to to-be-replaced views.

Result (Replace Viewports)
Before:

After:

Replace Viewports Using All Viewports
This functionality is very similar to the Replace Viewports using selected Viewports. The only difference is that you won't need to separately select views to replace with. Instead, in the mapping window, all project views will be visible in the drop-down selection.
Replace Viewports using all Viewports - View that is already placed in a sheet can be replaced by a

Place Viewports on Existing Sheets
This command duplicates selected views, that are already placed on Sheets, and places them on other Sheets.
The workflow is this:
Select views and click the Place Viewports on existing Sheets button.

In the 'Option' window, choose the properties to copy from the selected views.

Select the Sheets to place the selected (and duplicated) views on.

Selected views have been duplicated (Duplicate with Detailing) and placed on Sheets:

Place New Viewports
Place new Viewports functionality places views, that aren't placed on any Sheets, on selected existing Sheets.
The workflow:
Select views that will be used as templates (for position) and hit the Place new Viewports button.

In the 'Option' window, choose the properties to copy from the selected views.

Select views to add to the Sheets.

Select the Sheets to place the views on and the template viewports for a position on these Sheets. Click OK to finish.

Selected views have been placed on the defined Sheets in the defined positions.
Last updated
Was this helpful?